Biloba

BILOBA-RESTRUCTURATION D’UNE VILLA POUR UN HABITAT PARTICIPATIF

MOA

SCIA BILOBA

MOE

KAYAK Architecture, mandataire
B2M INGENIERIE, DET, Economie, OPC
KEOPS INGENIERIE, BE Structure

Mission

ESQ, AVP, PC, APD, PRO

Programme – Lieu

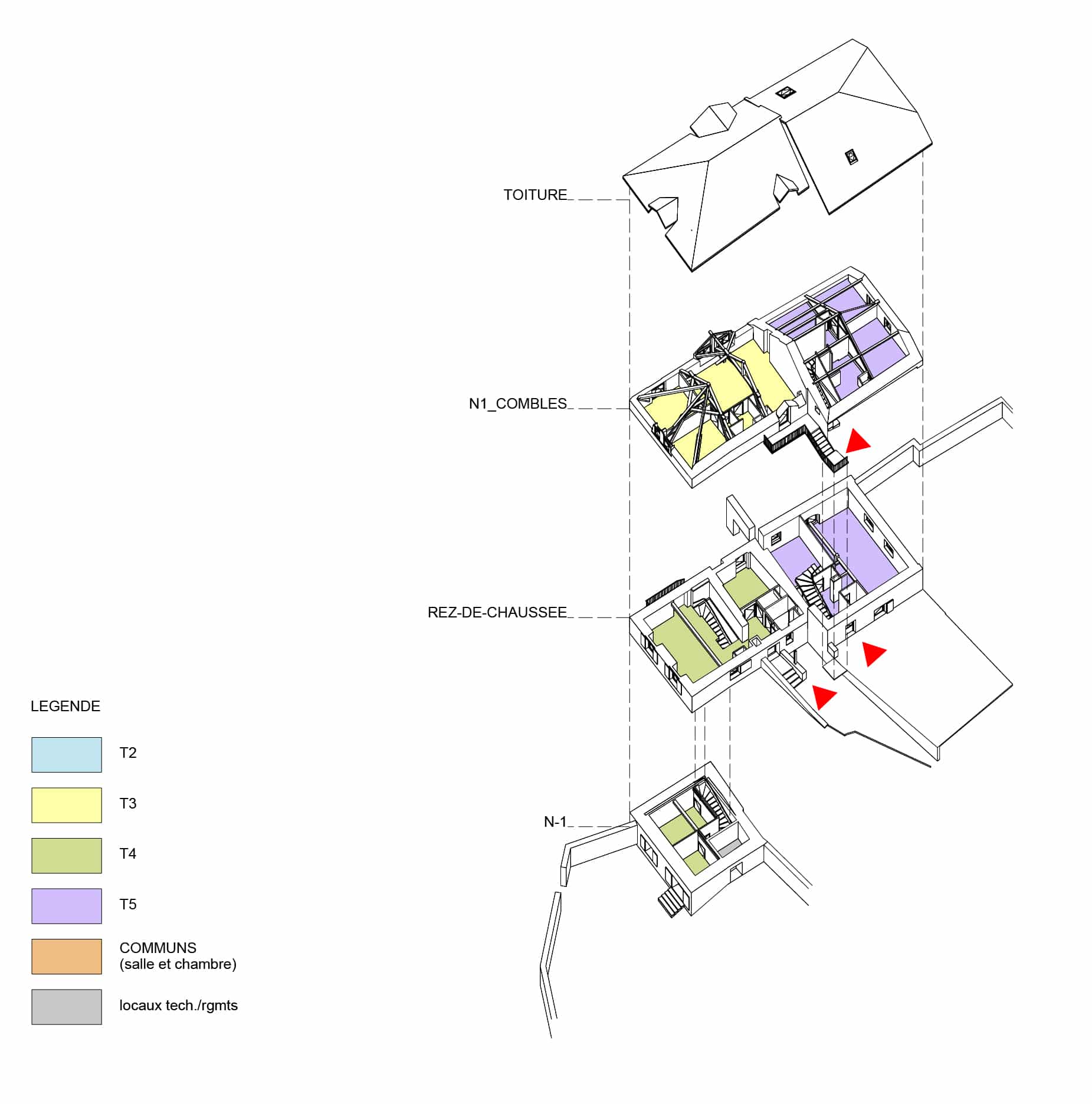
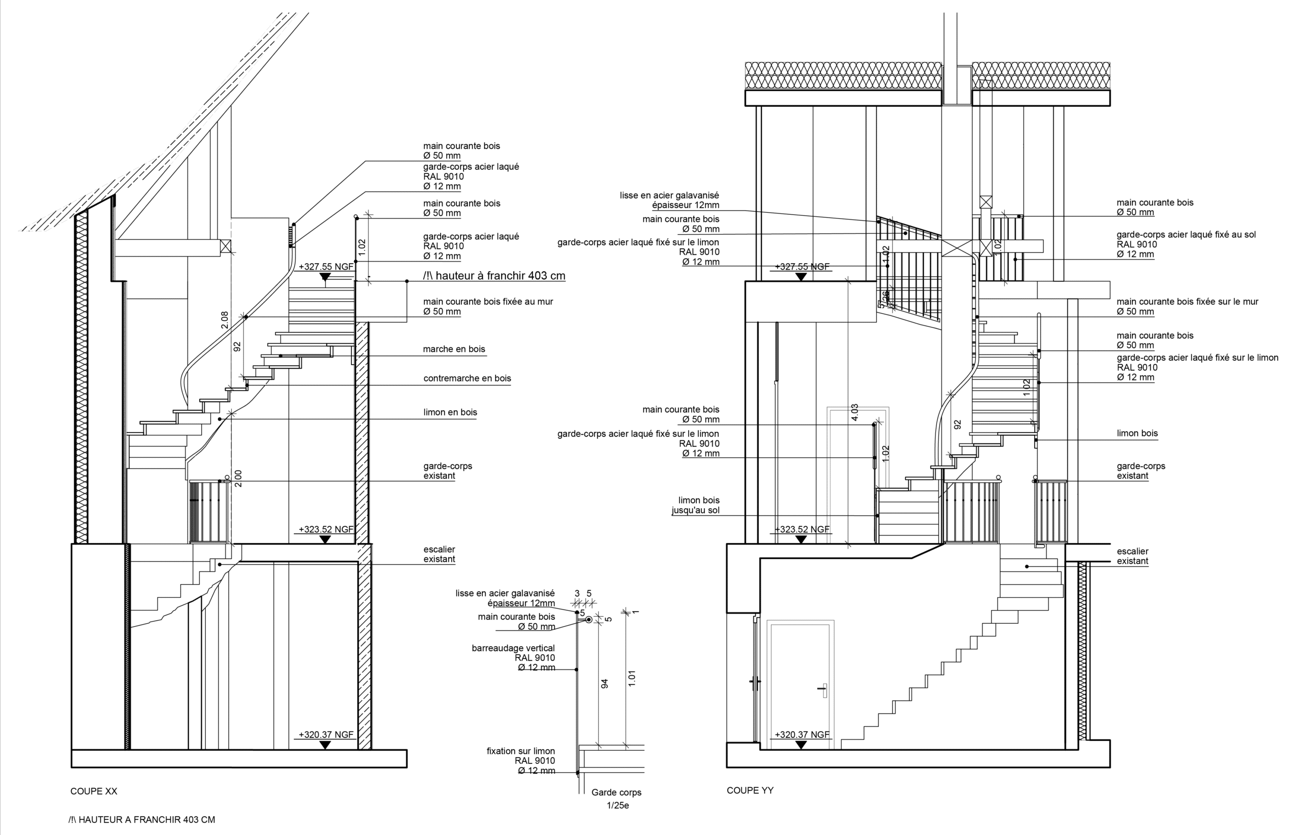
Reconversion d’une maison de maître en 8 logements à Barberaz (73)

Surface

650 m²

Montant des travaux

estimation 1 600 000€ HT

Performances

Niveau de performance de la règlementation thermique des bâtiments existants (RTex par éléments)

Phase

Chantier en cours

Restructuration d’une ancienne villa et de ses dépendances en habitat participatif de 8 logements.

 

2023 : ARCHITECTE DIPLOMEE D’ETAT, ENSA Paris-Belleville

septembre 2024 – Aujourd’hui : ARCHITECTE ASSISTANTE, KAYAK ARCHITECTURE, CHAMBERY (73)

Conception, développement du projet de la phase esquisse à la phase chantier de projets d’architecture à faible impact environnemental. Diagnostics ressources avant-projet.

octobre 2021 – octobre 2023 : CYCLE UP, Paris (auto-entrepreneuse, missions de diagnostic PEMD)

2019 – Aujourd’hui : ARCHITECTE CO-GERANT, KAYAK ARCHITECTURE, CHAMBERY 73

  • Conception, développement et suivi de chantier de projets d’architecture à faible impact environnemental.
  • Accompagnement de la maîtrise d’ouvrage publique et privée en stratégie territoriale et économie circulaire.
  • Diagnostics ressources avant-projet.

DEPUIS AOUT 2022 : PRESIDENT, ENFIN ! REEMPLOI, CHAMBERY 73

  • Atelier Chantier d’Insertion Enfin ! Réemploi – Réinsertion par le biais du réemploi des matériaux issus de la déconstruction.

2007 – 2019 : ARCHITECTE ASSOCIE DIRECTEUR GENERAL DELEGUE, PATRIARCHE, 73

  • Responsable du pôle urbanisme
  • Directeur de projet en architecture
  • Suivi de plus de 400 projets AMO, architecture, urbanisme sur la période 2001-2019

2001 – 2007 : ARCHITECTE CHEF DE PROJET, PATRIARCHE, LE BOURGET-DU-LAC 73

  • Conception, développement du projet de la phase esquisse à la phase chantier.

1999 – 2001 : ARCHITECTE ASSISTANT, JPGA ARCHITECTURE LYON 69

  • Dessinateur, projeteur, suivi de chantier.